
【产品用处】
集团出产的J41H、J41Y 型高温高压截止阀合用于公称压力150LB~2500LB,工作温度为570℃的石油、化工 、水力 、火力电站各类系统的管路中,堵截或接通管路介质。
【产品特点】
1、阀门中腔选取压力自紧式密封结构,密封机能越好。支管两端为焊接结构。焊接坡口可按尺度或用户要求配接
2、阀瓣、阀座的密封面选取司太立钴基硬质合金堆焊而成,耐磨、耐高温,抗擦伤机能好、使用寿命长
3、阀杆经调质和表表氮化处置,有优良的搞侵蚀性和抗擦伤性。
4、阀盖填料函深度合理,填料加缓蚀剂,密封靠得住
【执行尺度】
设计尺度:ASME B16.34
结构长度:SME B16.10
试验与检验:API 598
压力-温度:ASME B16.34
产品标识:ASME B16.34
【机能参数】
|
公称压力 |
150LB |
300LB |
600LB |
900LB |
1500LB |
2500LB |
|
|
工作压力(MPa) |
2.0 |
5.0 |
10.0 |
15.0 |
25.0 |
45.0 |
|
|
合用温度(℃) |
≤570 |
≤570 |
≤570 |
≤570 |
≤570 |
≤570 |
|
|
合用介质 |
蒸汽等高温高压价值 |
||||||
|
资料 |
阀体、阀盖 |
铬钼钒钢 |
|||||
|
阀瓣 |
铬钼钒钢+堆焊硬质合金 |
||||||
|
阀座 |
铬钼钒钢+堆焊硬质合金 |
||||||
|
阀杆 |
铬钼钒钢 |
||||||
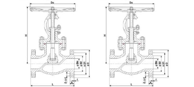
【重要表形和衔接尺寸】
|
DN |
L |
D |
D1 |
D2 |
f |
b |
z-Φd |
H |
D0 |
|
150(LB) |
|||||||||
|
DN15 |
108 |
90 |
60.3 |
35 |
2 |
8 |
4-Φ16 |
235 |
125 |
|
DN20 |
117 |
100 |
70 |
43 |
2 |
9 |
4-Φ16 |
241 |
125 |
|
DN25 |
127 |
110 |
79.4 |
51 |
2 |
9.6 |
4-Φ16 |
242 |
125 |
|
DN32 |
140 |
115 |
89 |
63.5 |
2 |
11.2 |
4-Φ16 |
280 |
160 |
|
DN40 |
165 |
125 |
98.4 |
73 |
2 |
12.7 |
4-Φ16 |
315 |
160 |
|
DN50 |
203 |
150 |
120.7 |
92 |
2 |
14.3 |
4-Φ19 |
350 |
200 |
|
DN65 |
216 |
180 |
139.7 |
105 |
2 |
15.9 |
4-Φ19 |
370 |
200 |
|
DN80 |
241 |
190 |
152.4 |
127 |
2 |
17.5 |
4-Φ19 |
385 |
250 |
|
DN100 |
292 |
230 |
190.5 |
157.2 |
2 |
22.3 |
8-Φ19 |
454 |
250 |
|
DN125 |
356 |
255 |
216 |
185.7 |
2 |
22.3 |
8-Φ22.5 |
472 |
355 |
|
DN150 |
406 |
280 |
241.5 |
216 |
2 |
23.9 |
8-Φ22.5 |
541 |
355 |
|
DN200 |
495 |
345 |
298.5 |
270 |
2 |
27 |
8-Φ22.5 |
590 |
450 |
|
DN250 |
622 |
405 |
362 |
324 |
2 |
28.6 |
12-Φ25.5 |
780 |
450 |
|
DN300 |
698 |
485 |
438 |
381 |
2 |
30.2 |
12-Φ25.5 |
870 |
500 |
|
DN350 |
787 |
535 |
476.3 |
413 |
2 |
33.4 |
12-Φ28.5 |
900 |
600 |
|
DN400 |
914 |
595 |
540 |
470 |
2 |
35 |
16-Φ28.5 |
1250 |
600 |
|
DN450 |
- |
635 |
578 |
533.4 |
2 |
38.1 |
16-Φ32 |
- |
610 |
|
300(LB) |
|||||||||
|
DN15 |
152 |
95 |
66.7 |
35 |
2 |
12.7 |
4-Φ16 |
241 |
125 |
|
DN20 |
178 |
115 |
82.6 |
43 |
2 |
14.3 |
4-Φ19 |
241 |
125 |
|
DN25 |
203 |
125 |
89 |
50.8 |
2 |
15.9 |
4-Φ19 |
283 |
160 |
|
DN32 |
216 |
135 |
98.5 |
63.5 |
2 |
17.5 |
4-Φ19 |
320 |
200 |
|
DN40 |
229 |
155 |
114.3 |
73 |
2 |
19.1 |
4-Φ22.5 |
322 |
200 |
|
DN50 |
267 |
165 |
127 |
92.1 |
2 |
20.7 |
8-Φ19 |
345 |
200 |
|
DN65 |
292 |
190 |
149.2 |
104.8 |
2 |
23.9 |
8-Φ22.5 |
377 |
250 |
|
DN80 |
318 |
210 |
168.3 |
127 |
2 |
27 |
8-Φ22.5 |
464 |
280 |
|
DN100 |
356 |
255 |
200 |
157.2 |
2 |
30.2 |
8-Φ22.5 |
490 |
355 |
|
DN125 |
400 |
280 |
235 |
185.7 |
2 |
33.4 |
8-Φ22.5 |
614 |
400 |
|
DN150 |
444 |
320 |
270 |
216 |
2 |
35 |
12-Φ22.5 |
700 |
450 |
|
DN200 |
559 |
380 |
330.2 |
270 |
2 |
39.7 |
12-Φ25.5 |
777 |
500 |
|
DN250 |
622 |
445 |
387.4 |
323.8 |
2 |
46.1 |
16-Φ28.5 |
935 |
550 |
|
DN300 |
711 |
520 |
450.8 |
381 |
2 |
49.3 |
16-Φ32 |
997 |
600 |
|
DN350 |
762 |
585 |
514.4 |
412.8 |
2 |
52.4 |
20-Φ32 |
1058 |
650 |
|
DN400 |
864 |
650 |
571.5 |
470 |
2 |
55.6 |
20-Φ35 |
1320 |
700 |
|
600(LB) |
|||||||||
|
DN15 |
165 |
95 |
66.7 |
35 |
7 |
14.3 |
4-Φ16 |
245 |
156 |
|
DN20 |
190 |
115 |
82.6 |
43 |
7 |
15.9 |
4-Φ19 |
245 |
161 |
|
DN25 |
216 |
125 |
89 |
50.8 |
7 |
17.5 |
4-Φ19 |
290 |
187 |
|
DN32 |
229 |
135 |
98.4 |
63.5 |
7 |
20.7 |
4-Φ19 |
325 |
214 |
|
DN40 |
241 |
155 |
114.3 |
73 |
7 |
22.3 |
4-Φ22.5 |
330 |
252 |
|
DN50 |
292 |
165 |
127 |
92.1 |
7 |
25.4 |
8-Φ19 |
345 |
430 |
|
DN65 |
330 |
190 |
149.2 |
104.8 |
7 |
28.6 |
8-Φ22.5 |
365 |
480 |
|
DN80 |
356 |
210 |
168.3 |
127 |
7 |
31.8 |
8-Φ22.5 |
465 |
530 |
|
DN100 |
432 |
275 |
216 |
157 |
7 |
38.1 |
8-Φ25.5 |
520 |
650 |
|
DN125 |
508 |
330 |
266.7 |
185.7 |
7 |
44.5 |
8-Φ28.5 |
635 |
750 |
|
DN150 |
559 |
355 |
292.1 |
216 |
7 |
47.7 |
12-Φ28.5 |
763 |
850 |
|
DN200 |
660 |
420 |
349.2 |
270 |
7 |
55.6 |
12-Φ32 |
845 |
1050 |
|
DN250 |
787 |
510 |
431.8 |
323.8 |
7 |
63.5 |
16-Φ35 |
930 |
1257 |
|
DN300 |
838 |
560 |
489 |
381 |
7 |
66.7 |
20-Φ35 |
1010 |
1468 |
|
DN350 |
889 |
605 |
527 |
412.8 |
7 |
69.9 |
20-Φ38 |
1090 |
1623 |
|
DN400 |
991 |
685 |
603.2 |
470 |
7 |
76.2 |
20-Φ41 |
1140 |
1816 |
|
900(LB) |
|||||||||
|
DN50 |
368 |
215 |
165.1 |
92.1 |
7 |
38.1 |
8-Φ25.5 |
430 |
320 |
|
DN65 |
419 |
245 |
190.5 |
104.8 |
7 |
41.3 |
8-Φ28.5 |
530 |
320 |
|
DN80 |
381 |
265 |
190.5 |
127 |
7 |
38.1 |
8-Φ28.5 |
580 |
360 |
|
DN100 |
457 |
290 |
235 |
157.2 |
7 |
44.5 |
8-Φ32 |
690 |
450 |
|
DN125 |
559 |
350 |
279.4 |
185.7 |
7 |
50.8 |
8-Φ35 |
780 |
560 |
|
DN150 |
610 |
380 |
317.5 |
216 |
7 |
55.6 |
12-Φ32 |
890 |
630 |
|
DN200 |
737 |
470 |
393.7 |
270 |
7 |
63.5 |
12-Φ38 |
1240 |
720 |
|
DN250 |
838 |
545 |
470 |
323.8 |
7 |
69.9 |
16-Φ38 |
1651 |
760 |
|
1500(LB) |
|||||||||
|
DN65 |
419 |
245 |
190.5 |
104.8 |
7 |
41.6 |
8-Φ28.5 |
530 |
400 |
|
DN80 |
470 |
265 |
203.2 |
127 |
7 |
47.7 |
8-Φ32 |
590 |
450 |
|
DN100 |
546 |
310 |
241.3 |
157.2 |
7 |
54 |
8-Φ35 |
710 |
500 |
|
DN125 |
673 |
375 |
292.1 |
185.7 |
7 |
73.1 |
8-Φ41 |
780 |
560 |
|
DN150 |
705 |
395 |
317.5 |
215.9 |
7 |
82.6 |
12-Φ38 |
904 |
630 |
|
DN200 |
832 |
485 |
393.7 |
270 |
7 |
92.1 |
12-Φ45 |
1140 |
560 |
|
2500(LB) |
|||||||||
|
DN65 |
508 |
265 |
196.8 |
104.8 |
7 |
57.2 |
8-Φ32 |
740 |
400 |
|
DN80 |
578 |
305 |
228.6 |
127 |
7 |
66.7 |
8-Φ35 |
780 |
450 |
|
DN100 |
637 |
355 |
273 |
157.2 |
7 |
76.2 |
8-Φ41 |
860 |
560 |
|
DN125 |
794 |
420 |
323.8 |
185.7 |
7 |
92.1 |
8-Φ48 |
930 |
630 |
|
DN150 |
914 |
485 |
368.3 |
216 |
7 |
108 |
8-Φ54 |
1070 |
560 |
|
DN200 |
1022 |
550 |
438.2 |
270 |
7 |
127 |
12-Φ54 |
1180 |
630 |
【结构图片】
